オフィスレイアウトを自社でも考えたい方必見!プロが教えるチェックリストと参考図面
公開:2025.10.03 更新:2026.03.17
理想的なオフィスレイアウトは、事業内容・組織体制・企業文化・ワークスタイルによって異なります。
オフィスデザイン会社はプロとして数多くのレイアウト設計を行いますが、最も適した配置は各企業ごとに異なり、社内にしか分からない部分も多いのです。
そこで今回は、オフィスレイアウトを自社で検討する際に役立つ基本の考え方と参考図面をご紹介します。
「まずは自分たちでイメージを整理しておきたい」と考えている方は、ぜひ参考にしてください。
※オフィスレイアウトの基本的な考え方については、「オフィスレイアウトを考える際に参考にしたい基礎知識・アイデア・事例まとめ」の記事でも詳しく解説しています。
オフィスコンセプトの明確化とその重要性

まずは、新しいオフィスの コンセプトを明確にすること が不可欠です。
これはレイアウトを検討する上で最重要ステップといっても過言ではありません。
オフィスコンセプトを軸に、ゾーニング(エリア分け)や動線設計を進めていきます。
●オフィスコンセプトとは?
オフィスコンセプトとは、「オフィスで実現したいこと」言い換えることができます。
例えば、「コミュニケーションが活性化するオフィス」「社員の健康と快適性を重視したオフィス」「多様な働き方をサポートするオフィス」といったように、単なる内装デザインのテーマではなく、オフィスのあり方や働き方、そして今後目指していきたい会社の姿を空間に表現したものです。
●オフィスコンセプトの作り方
オフィスコンセプトは、担当者や経営層だけでなく、そこで働く社員みんなで考えることをおすすめします。
日々オフィスに感じていた課題や問題点を洗い出したり、理想のオフィスを明確にすることで新しいオフィスへの愛着が湧き、出社率アップにも繋がります。
ゾーニング(エリア分け)の方法と押さえておくべきポイント

次は、オフィス内をエリアごとに分ける「ゾーニング」です。
業務スペース、会議室、来客エリア、リフレッシュスペースなどをどこに配置するか、大枠を決めていきます。
●ポイント1:必要なスペースをリストにする
必ず必要なスペース(業務スペースや会議室など)、できれば作りたいスペース(リフレッシュスペースやワークブースなど)、あったら嬉しいスペース(キッチンや喫煙ブースなど)と、松・竹・梅に分けて明文化するのがポイントです。
●ポイント2:物件の図面をよく見る
ビル管理会社から渡された建築図面をよく見てみましょう。
スペースは好きなように配置できるのではなく、予め様々な制限がかかるものです。
例えば、エントランスは入口から入ってすぐのエリア、トイレやキッチンは(多くの場合)水道管が通っているエリアなど、建物の条件によって制約されます。
また、窓、柱、梁などもエリア分けを制限する要因となりますので、これらを踏まえたうえでゾーニングを検討することが重要です。
●ポイント3:今オフィスの課題を元に最適配置を考える
例えば、会議室が足りない、リフレッシュスペースが使われていない、電話等の音で業務に集中できないなど、実際に働く社員にヒアリングして、それらを解決できる配置を目指しましょう。
オフィス動線の基本の考え方と把握しておくべき基準寸法

最後は、ゾーニングにも関わる動線についてです。
動線とは、オフィス内で人が移動する際の経路や流れのことです。
●来客動線と社員動線を分ける
オフィスの動線は、来客動線と社員導線に分けて考えます。
来客動線は、基本的にエントランスから応接室(または会議室)まで、他のスペースを経由しないルートが理想です。
社員導線は、ロッカーから業務スペース、業務スペースからリフレッシュスペースやトイレ、業務スペース内での移動など、様々な角度から検証する必要があります。
●業務スペース内における動線
業務スペースにおける動線の基本は中心にメイン通路を置き、そこから枝分かれする「大木型」が一般的です。
ただし、組織や業務の流れに合わせて柔軟に検討することが大切です。
●基準寸法を把握しておく
社員が移動しやすく、無駄な交差が起きない動線設計をするためには、通路の基準寸法を把握しておくことが大切です。
・通路幅:メイン通路は1,200mm以上
・サブ通路は900mm以上
・デスクから壁までの幅:1200mm以上
・デスクから収納棚までの幅:1500mm以上
・背中合わせになったチェアとチェアの幅:1600mm〜1800mm程度
※基準寸法については、下記の記事でも詳しく解説しています。
「オフィスレイアウトに必要な寸法基準とは?」
これらの基準は執務エリアだけでなく、会議室や休憩スペースにも共通します。
参考になるオフィスレイアウト図面事例①:フリーアドレス型レイアウト

こちらは、フリーアドレスの業務スペースをベースにしたレイアウト図面です。
エントランスから直接大会議室と中会議室へアクセスできるように配置されています。
また、広い業務スペースはフリーアドレスなので、敢えて導線をラフにしつつ、様々なタイプの座席を設置しました。
オープン席が中心ですが、部屋の一番奥に一人業務に使えるワークブースを設置して、集中できる環境も整えています。
参考になるオフィスレイアウト図面事例②:固定席+フリースペース併用型

こちらは、48坪の空間に、固定席の執務スペースとフリーアドレスの執務スペースを配置したレイアウト図です。
来客が少ないためエントランスを設けず、その分執務スペースを拡大、大テーブル周辺の通路幅を広く取り、圧迫感を軽減するとともに、視線が交わらないよう壁沿いにカウンター席を設置しています。トイレ、キッチンの水回りにロッカールームを配置しました。
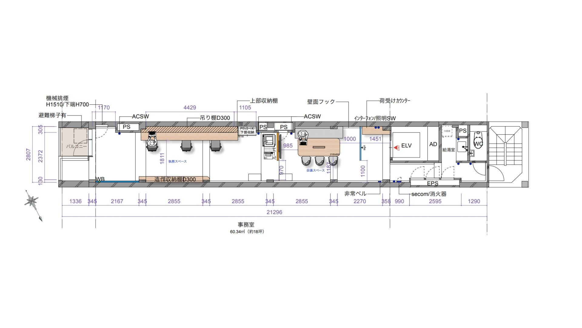
参考になるオフィスレイアウト図面事例③:小規模オフィスのシンプルレイアウト

こちらはわずか18坪というコンパクトオフィスのレイアウト図面です。
長方形の空間に、エントランス→会議室兼応接スペース→業務スペースを一直線に並べました。
本格的な間仕切りは立てず、ルーバーやガラスパーテーションでエリア分けしています。
エントランスから一番遠い窓際にリラクゼーションチェアを設置しました。
※さらに詳しいオフィスレイアウトのチェックポイントについては、
下記の記事にもまとめています。
「オフィスレイアウトをワンランクアップさせるための13のチェックポイント」
最終的にはプロに図面を起こしてもらおう

使いやすいオフィスを実現するために、自社でレイアウトイメージを固めておくことは非常に有効です。
最終的には、建築基準や法規制、施工の可否を考慮して、プロに図面を起こしてもらうことが必要となりますが、事前にコンセプトや希望を整理しておくことで、デザイナーとの打ち合わせもスムーズになり、理想に近いオフィスが実現できます。
お気軽にご連絡下さい!

